苏州德赛斯厨房设备有限公司 欢迎您!

十二年专注 净菜加工、中央厨房 整体解决方案

提供方案设计、设备选型、安装调试、售后维护一站式服务

服务热线

180-1359-8269

0512-65808239

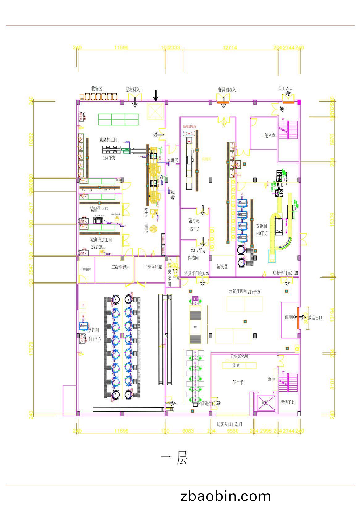
设计方案

Case

咨询热线

0512-65808239
联系德赛斯厨房设备

苏州德赛斯厨房设备有限公司

联系我们:180-1359-8269

电子邮箱:14527416 @qq.com

公司地址:江苏省苏州市相城区望亭镇新华工业园堰头路20号

立即咨询 在线留言

德赛斯厨房设备 您当前的位置:
首页> 食品加工解决方案
上一页下一页
  • 2条记录
  • 德赛斯厨房设备

    联系人:田小姐

    联系电话:180-1359-8269

    百度号码:14527416

    电子邮箱:14527416 @qq.com

    公司地址:江苏省苏州市相城区望亭镇新华工业园堰头路20号

    德赛斯厨房设备
    • 德赛斯厨房设备 扫一扫加关注
    • 德赛斯厨房设备 扫一扫加百度
    备案号:苏ICP备13024677号-2    版权所有:苏州德赛斯厨房设备有限公司    技术支持:苏州网络公司
    JmGyO